
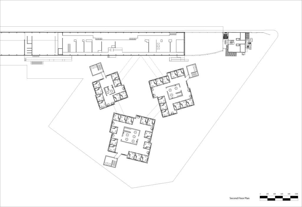
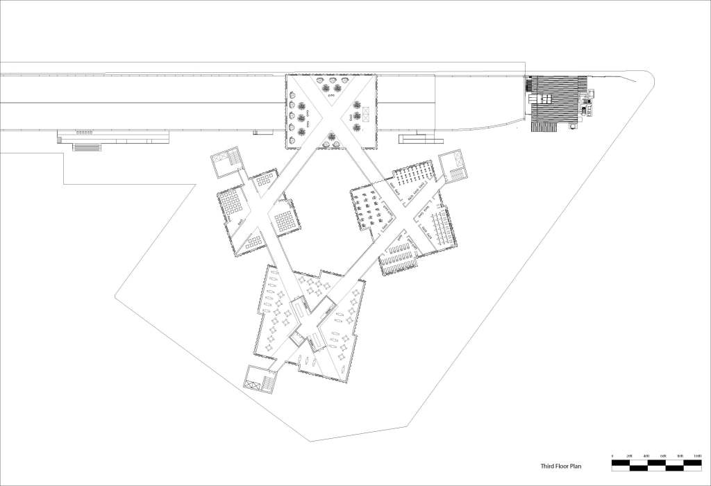
Situated in the rapidly gentrifying Arts District of Los Angeles, this project proposes a 45,000 sq. ft. expansion for SCI-Arc, reimagining the school not just as an enclosed academic fortress but as a porous urban infrastructure. The design challenges the traditional “institutional” identity by integrating student amenities with community outreach programs. Through a strategy of adaptive reuse and strategic addition, the project navigates the tension between necessary growth and the preservation of the school’s radical, experimental ethos, creating a new “third act” for the historic quarter-mile-long building.









